О компании
Сотрудничество
Контакты
Москва и область
Санкт-Петербург и ЛО
Краснодар
MAX
Telegram
+7 (495) 960-82-64
info@zameroff.com
Личный
Кабинет
О компании
Zameroff
Компания профессионалов, выполняющих сервис для мебельных компаний
Мы предлагаем сотрудничество компаниям, которым нужна срочная и профессиональная помощь с замером
помещений под мебель.
Мы специалисты по замерам помещений!
Выполним замер комнат под
кухни / кухонный гарнитур
гардеробные / кладовые
шкафы
постирочные
санузлы
прихожие
спальни
детскую
Выполним замеры разного типа сложности
дверные и оконные проёмы
технические помещения
балконы, лоджии, террасы, веранды
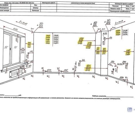
обмерный план помещений
замер по индивидуальным дизайнерским эскизам
Выполнение замера
отправляйте замер через наш сайт
www.zameroff.com
. Замеры
на следующий день принимаются до 18:00
. Заявки после 18:00 выполняются на послезавтра.
замерщик связывается с заказчиком накануне замера,
вечером, с 19:00 до 21:00 и договаривается на замер
в указанное Вами время
замерщик выезжает на адрес клиента в заранее обговоренное время:
снимает размеры помещения
делает фото помещения с разных ракурсов
согласовывает с клиентом возможные изменения размеров помещения
отправляет бланк замера и фотографии на почту указанную в заявке заказчика не позднее 11:00 следующего дня после замера
Заявка на замер
Замеры на следующий день принимаются до 18:00. Заявки после 18:00 выполняются на послезавтра.
Заявка на замер
Наши преимущества
работаем
с 2010 года
выполнение замеров любой сложности
cовременный точный инструмент
online
отчёт о контроле выполнения заказа
опытные замерщики со стажем более 5 лет
скидки и привилегии для постоянных и крупных заказчиков
оплата на сайте
График работы
понедельник-воскресенье
с 8:00 до 20:00
31 декабря и 1 января выходные
отправка выполненных замеров не позднее 11:00 следующего дня после замера
обзвон клиентов с 19:00 до 21:00
(все нестандартные ситуации прописывайте в комментариях)
дополнительные объекты замера не указанные в заявке могут быть выполнены в другой день, если у замерщика нет свободного времени
+7 (495) 960-82-64 - Москва и МО
+7 (999) 030-55-15 - Санкт-Петербург и ЛО
+7 (922) 314-30-00 - Казань (сервис временно приостановлен)
+7 (922) 314-30-00 - Пермь (сервис временно приостановлен)
Краснодарский край
info@zameroff.com
Оплата за выезд замерщика
Осуществляется в течении суток любым удобным для вас способом
1
Клиентом на месте замера
2
Онлайн через сайт
3
На расчётный счёт вашей компанией (при количестве замеров от 30 шт.)
Фото наших работ
Запрос
Я ознакомлен (-на) и согласен (-на) с
Политикой конфиденциальности
Отправить
Заявка на замер
Без регистрации
Войти
в личный кабинет
Войти
Не помню пароль
На нашем сайте мы используем cookie файлы
Узнать подробнее
Понятно