

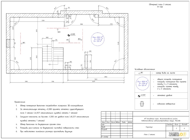
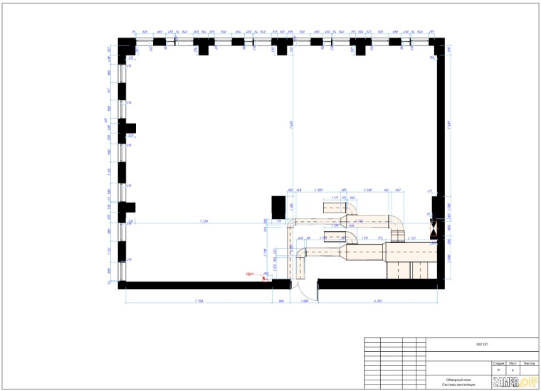
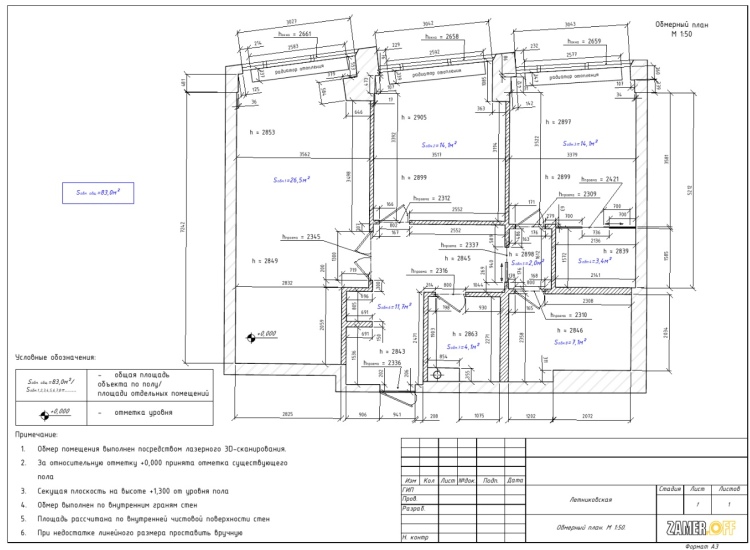
Лазерное 3D‑сканирование устраняет типичные сложности ручных обмеров и позволяет быстро и с высокой точностью получить все размерные и визуальные данные об объекте.
Это облегчает подготовку смет и проектную документацию, а заказчик получает реалистичную визуализацию пространства на ранних стадиях проекта.
По результатам 3D‑сканирования вы получите обмерный план или 3D‑модель в AutoCAD, Revit или ArchiCAD, выполненные в точном соответствии с вашим техническим заданием. Идеально подойдет дизайнерам, строителям, архитекторам и проектировщикам.




